TETRAL B
Informations Générales
TETRAL b est une cellule ouverte aluminium système de plafond du rayon de miel qui est produit par l'inspiration à partir d'un système de grille en bois classique, constitué d'un "U" adulte en plusieurs largeurs et hauteurs. Il offre aux concepteurs et architectes de conception différentes possibilités avec le type, la taille de la cellule et les détails de finition de surface. Grâce au système autonome créé à partir de l'adulte des cellules du rayon de miel, une parfaite image de plafond est atteint.
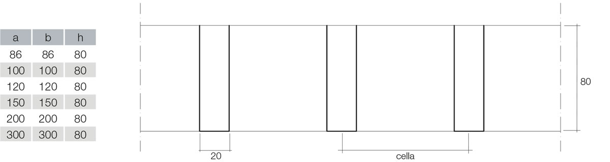
TETRAL b est disponible en formats 5: Tetràl b4, b5, B10, b12, et b20 Tetràl sont les noms qui varient en fonction de la largeur des profils. Tetral b se compose de profilés en aluminium en forme de double U produit en 600x600mm ou 1200x600mm. La taille de la cellule peut varier de 30x30 mm à 300x300 mm. Hauteurs de profil vont de 30 mm à 80 mm. Tetral b plafon peuvent également être présentées comme perforé pour servir tout droit ou esthétique et acoustique.
Şartname
- Tedarik Şekli
- Petek haline getirilmiş, hazır
- Malzeme
- 0,40/0,80 mm kalınlıkta aluminyum
- Profil Kesit
- "U", 4/5/10/12/20mm ve h: --mm
- Hücre Ebadı
- ..x.. mm.
- Panel Ebadı
- 600x600mm ve 1200x600mm
- Yüzey Bitiş
- ...
- Taşıyıcı Sistem
- Gizli Taşıyıcılı "trackless" veya "kendinden taşıyıcılı" sistem
Détail

S.No | m2 Sarfiyat Tablosu | Birim | Hücre 30-66 | Hücre 75-300 | Panel |
---|---|---|---|---|---|
1 | T001 askı tiji | adet | 2,00 | 1,00 | 600x600 |
2 | T002 yay | adet | 2,00 | 1,00 | 600x600 |
3 | T003 kanca | adet | 2,00 | 1,00 | 600x600 |
4 | Ekleme Parçası | adet | 0,94 | 0,47 | 600x600 |
5 | T1800 ana taşıyıcı | adet | 0,94 | 0,47 | 600x600 |
6 | T1200 tali taşıyıcı | adet | - | 1,38 | 600x600 |
7 | T600 tali taşıyıcı | adet | 2,70 | 1,38 | 600x600 |









Montage
TETRÀL b petek tavan sistemi, modülü oluşturan profillerle aynı evsafta T1800 ana taşıyıcı T1200/T600 tali taşıyıcı profilleri ile tamamen entegre bir sistemdir. Ana taşıyıcılar her 1200mm ya da 600mm de bir, tali taşıyıcılar da ana taşıyıcılara 600mm de bir kliklenir. TETRÀL b panelleri, aşağı yönlü demontaj imkanı sağlayan “Delta taşıyıcı sistem” ile de kullanılabilir, bu durumda modül ölçüsü 600x1200mm olmalıdır.